產品展示
蒸汽過濾器
作者: 來源: 日期:2014/6/17 11:28:51 人氣:160

產品規格: HC-Z-01 HC-Z-05 HC-Z-10 HC-Z-30 HC-Z-50型
使用范圍: 蒸汽過濾器是高精度終端過濾器的配套濾器,其主要作用是有效而可靠地除掉夾帶在蒸汽中的雜質,保護高精度過濾器,延長其使用壽命。
蒸汽過濾器高精度終端過濾器采用蒸汽消毒滅菌時,由于蒸汽管道系統內雜物較多,對高精度過濾介質帶來嚴重后果,因此,對蒸汽必須進行過濾。
我公司的HC-Z型系列蒸汽過濾器是高精度終端過濾器的配套產品,其主要作用是有效而可靠地除掉夾帶在蒸汽中的雜質,保護和延長高精度終端過濾器的使用壽命。蒸汽過濾器主要由殼體和濾芯組成,殼體為全不銹鋼制造,其進出口在同一中心線上,拆卸上筒體即可更換濾芯;過濾介質為鈦棒濾芯、316L不銹鋼濾芯或聚四氟乙烯(粉末燒結),過濾精度0.22-50μm,具有耐高溫、耐腐蝕、可再生處理等優點。應用戶要求濾芯材質亦可采用鈦金屬或不銹鋼纖維燒結氈。
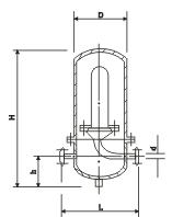
HC-Z型蒸汽過濾器規格型號、外形尺寸表
型號規格 | 外形尺寸(mm) | 配套于終端過濾器流量 | ||||
D | L | H | h | d(外徑) | ||
HC-Z-01 | 32 |
| 135 |
|
| 實驗室、中試系統用 |
HC-Z-05 | 65 | 140 | 224 | 40 | 22 | 0.5-3 |
HC-Z-10 | 90 | 160 | 390 | 65 | 22 | 5-20 |
HC-Z-30 | 185 | 240 | 430 | 100 | 27 | 30-100 |
HC-Z-50 | 219 | 310 | 435 | 125 | 32 | ≥150 |

上一條: 空氣呼吸器
下一條: 空氣過濾器

